Preis, Kosten, Förderungen
- Preis492.000,00 €
- provisionsfrei für Käufer
Grundlegende Informationen
- OrtSt. Oswald bei Freistadt
- ObjektartReihenhaus
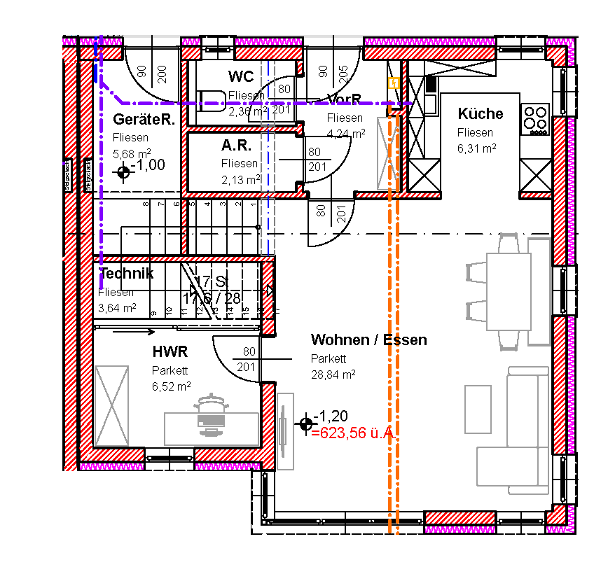
- Wohnfläche106.07 m2
- Baujahr2024
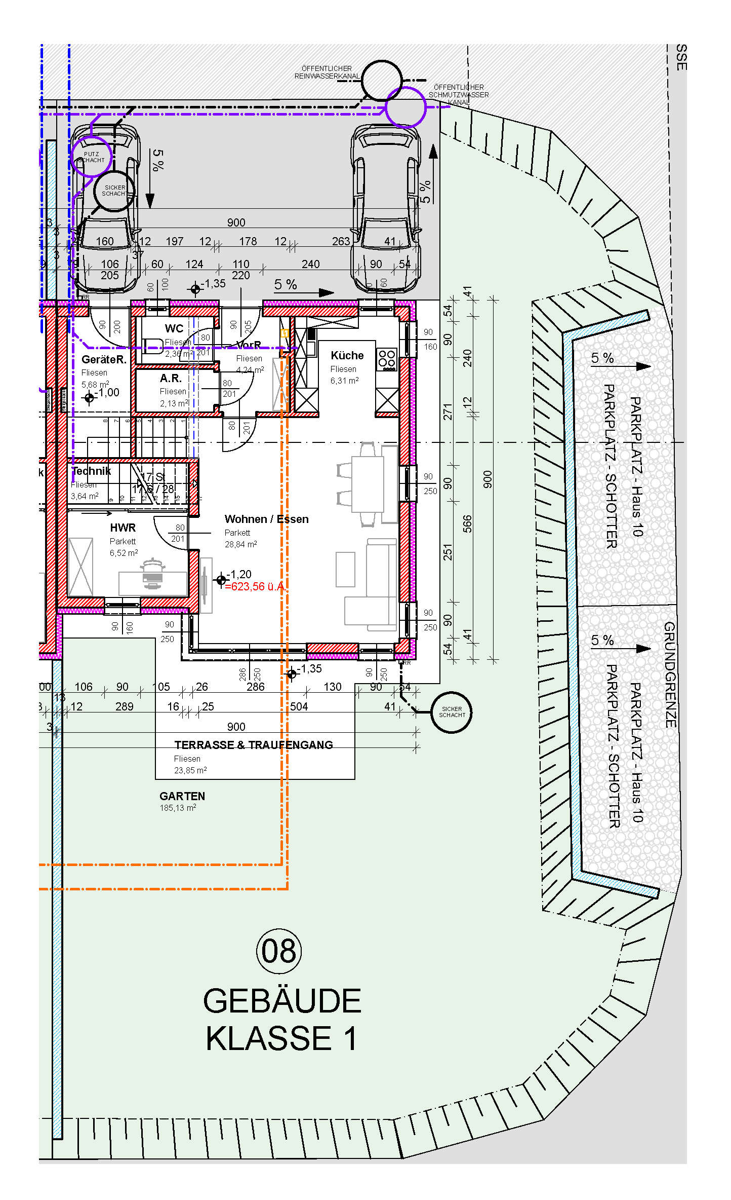
- Grundfläche448.00 m2
- Gartenfläche185.13 m2
- Nutzfläche115.39 m2
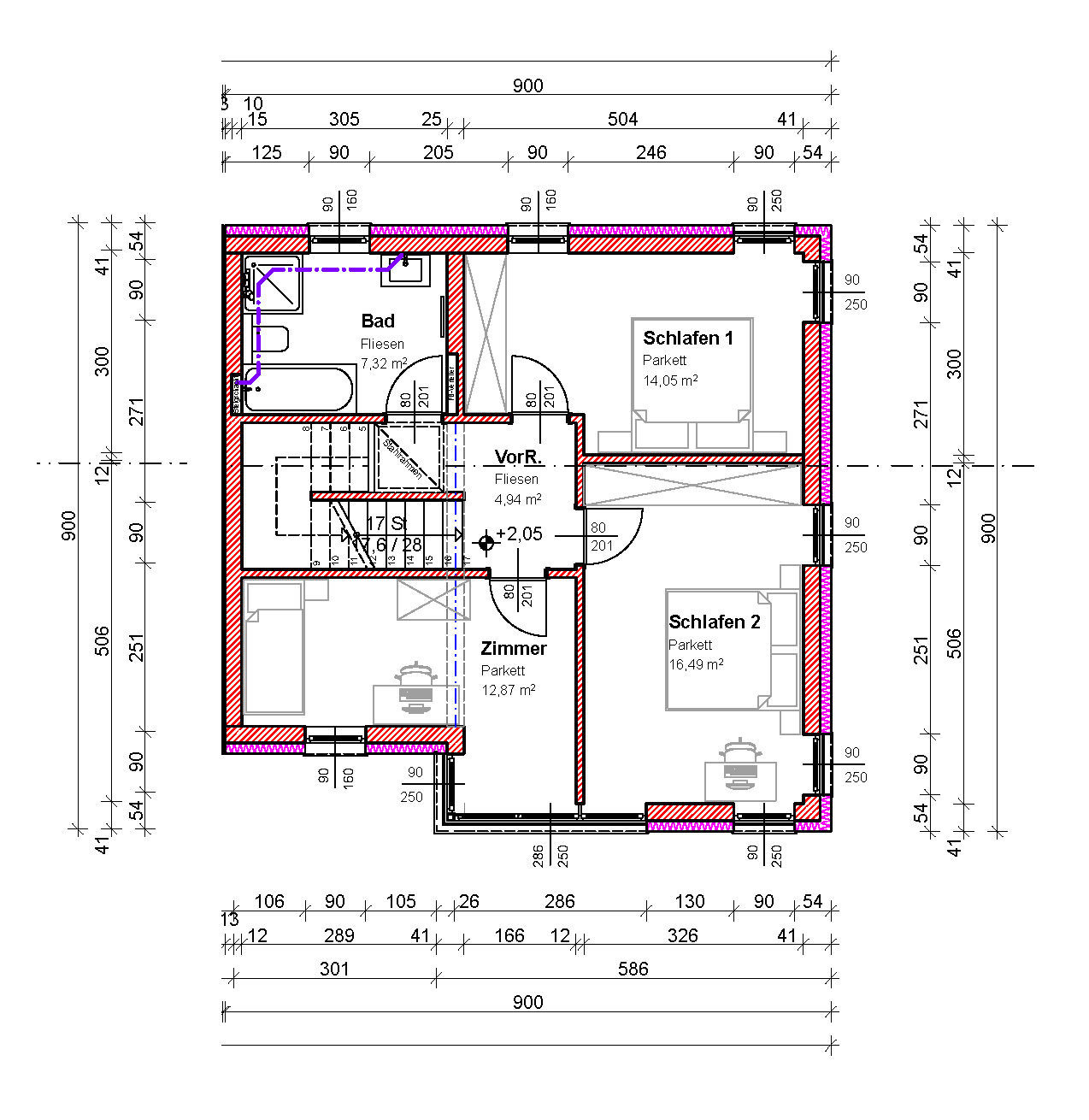
- Schlafzimmer3.00
- Zimmer5.00
- Nebenräume2.00
- Badezimmer1.00
- Anzahl WCs2.00
- Terrasse(n)1.00
- Terrasse(n) Größe23.85 m2
- Balkon(e)
- Balkon(e) Größe m2
- Loggia
- Loggia Größe m2
- Keller5.68 m2
- Garagenstellplätze
- AbstellplätzeEigentum
- ZustandErstbezug
- beziehbar abFrühjahr 2026
- HeizungsartZentralheizung
- HeizungsquelleLuft-Wärme-Pumpe
Energieausweis
- Heizwärmebedarf49 kWh/m²a kWh/m2a
- Klasse HeizwärmebedarfB
- Gesamtenergieeffizientsfaktor0.65
- Klasse GesamtenergieeffizientsfaktorA+
- Ausstellungsdatum17.06.2024
- Energieausweis gültig bis16.06.2034
- Primärenergiebedarf (PEB)34 kWh/m²a
- Kennwert für CO27.70 kg/m²a
- HeizungsartZentralheizung
- PrimärenergieträgerLuft-Wärme (Strom)
Ausstattung
- Familien geeignet
- Fußbodenheizung
- Breitband
- UMTS Empfang
- Abstellraum
- Fahrradraum
- Wasch- oder/und Trockenraum
- Gäste WC
- massive Bauweise
Videos
Dokumente
- PDF DownloadDetailbeschreibung
- PDF DownloadExposè
- PDF DownloadPreisliste aller Wohnungen
- PDF DownloadFirmenbroschüre
- PDF DownloadImmpulszeitschrift
- ZIP DownloadMediendaten
Beschreibung
HERZLICH WILLKOMMEN IN ST. OSWALD BEI FREISTADT – WO FAMILIEN WACHSEN UND LEBEN AUFBLÜHT
DAS VORSTELLEN
Ein Zuhause, das mitwächst. Wer eine Familie gründet oder mit den Kindern ein neues Kapitel aufschlagen möchte, sucht mehr als nur vier Wände – man sucht Geborgenheit, Platz zum Entfalten und eine Umgebung, in der sich alle wohlfühlen. Genau das finden Sie hier in St. Oswald bei Freistadt: sonnige Wohnlage, echtes Dorfgefühl und gleichzeitig die Nähe zur Bezirkshauptstadt – perfekt für Familien, die beides möchten.
Unweit vom Unimarkt und der Hausarztordination Dr. Etzlstorfer & Dr. Zauner OG entstehen 6 moderne, gemütliche Reihenhäuser sowie 6 großzügige Doppelhäuser – durchdacht geplant, familienfreundlich gestaltet und mit viel Raum für Ihre persönlichen Wohnträume.
Etwas erhöht über der Oswalder Senke genießen Sie den Blick über den Ort und die sanften Hügel des Mühlviertels – ein Panorama, das jeden Tag ein bisschen Urlaub in den Alltag bringt.
Hier entsteht ein Ort, an dem Kinder unbeschwert aufwachsen, Nachbarn einander kennen und gemeinsames Leben großgeschrieben wird.
Am Ende der Projektbeschreibung finden Sie alle Infos zum Umfeld, Schulen, Kinderbetreuung und Infrastruktur – kurz: alles, was Familien wichtig ist.
Nachfolgend stellen wir Ihnen die Häuser im Detail vor und zeigen, wie individuell Sie Ihr neues Zuhause gestalten können. Denn gut geschnittene Grundrisse sind die Basis – aber erst mit Ihren Farben, Ideen, Möbeln und Lieblingsmomenten wird daraus Ihr ganz persönliches Familiennest.
Bei der Planung dieser Häuser wurde an das gedacht, was Familien wirklich brauchen: Raum zum Leben, kurze Wege und ein Zuhause, das mit den Jahren mitwächst.
Aus Kostengründen – und weil moderne Heizsysteme heute kaum Platz benötigen – wurde bewusst auf eine Unterkellerung verzichtet. Das spart Geld, schafft aber dennoch alle nötigen Stauraummöglichkeiten direkt im Haus.
DIE HÄUSER
Der offene Wohn- und Essbereich ist das Herzstück jedes Hauses: hell, freundlich und großzügig gestaltet. Große Fensterelemente bringen viel Tageslicht ins Familienleben – ideal für gemeinsame Mahlzeiten, Hausaufgaben oder entspannte Abende auf der Couch.
Ein praktischer Wirtschaftsraum liegt direkt neben dem Wohnbereich. Der Raum kann flexibel genutzt werden: als Hauswirtschaftsraum, Homeoffice oder sogar als zusätzliches Kinder- oder Spielzimmer – ganz nach Ihren Bedürfnissen. Unter der Stiege findet sich die Haustechnik – kompakt, aber effizient.
Im Obergeschoss befinden sich drei gut geschnittene Schlafzimmer zwischen 14,4 und 17,3m² – perfekt für Eltern und Kinder.
Jedes Zimmer wurde so geplant, dass ein Doppelbett problemlos Platz findet. Das Elternzimmer bietet zudem ausreichend Fläche, um einen Schrankraum zu integrieren – ideal, um Ordnung und Übersicht im Alltag zu bewahren.
Das Badezimmer wurde bewusst familienfreundlich gestaltet: Eine Dusche für den schnellen Start in den Tag und eine Badewanne für entspannte Abende oder das Planschen mit den Kleinsten – denn gerade mit Kindern ist eine gemütliche Wanne einfach unbezahlbar.
Jede Reihenhauseinheit verfügt über einen eigenen Garten mit 90 bis 270 m² Nutzfläche sowie einer Terrasse mit rund 24 m² – ausreichend Platz für Spielen, Grillen oder einfach zum Durchatmen nach einem langen Tag.
Die Grundstücke sind an den südlichen Enden durch Steinschlichtmauern, Ziersträucher und einen Doppelstabzaun eingefriedet – sicher, grün und pflegeleicht.
Auf der nördlichen Seite befinden sich je Einheit drei PKW-Stellplätze, zusätzlich gibt es ausreichend Besucherparkplätze.
Wer möchte, kann zudem Carports unkompliziert und nachträglich errichten.
Praktisch ist auch der Kellerersatzraum beim Hauseingang – ideal für Fahrräder, Kinderwägen, Gartengeräte oder Spielsachen.
Hier entsteht ein Zuhause, das Komfort, Sicherheit und Natur vereint – ein Ort, an dem Familien sich rundum wohlfühlen und Kinder sorglos aufwachsen können.
DIE INFRASTRUKTUR
Die Gemeinde Sankt Oswald liegt nur knapp 10 Minuten östlich der Bezirksstadt Freistadt, rund 25 Minuten vom südlichen Bezirkszentrum Hagenberg/Pregarten/Wartberg und etwa 30 Minuten von der Landeshauptstadt Linz entfernt.
Auf 658 m Seehöhe, an der Faistritz am Rande der Mühlviertler Alm, vereint der Ort die Ruhe des Landlebens mit der Nähe zur Stadt.
Sankt Oswald ist eine typische, charmante Mühlviertler Marktgemeinde mit einer gut ausgebauten Infrastruktur, die das tägliche Leben angenehm und unkompliziert macht.
Ein vielfältiger Branchenmix sorgt dafür, dass Sie alles finden, was Sie für den Alltag benötigen – regional, überschaubar und persönlich.
DAS BILDUNGS- UND BETREUUNGSANGEBOT
Familienfreundlichkeit wird in Sankt Oswald großgeschrieben. Die Gemeinde bietet eine Krabbelstube, einen Gemeindekindergarten, sowie eine Volks- und Mittelschule direkt im Ort.
Für weiterführende Schulen und spezielle Ausbildungsmöglichkeiten liegt die Bezirksstadt Freistadt in bequemer Reichweite – schnell erreichbar und bestens angebunden.
DAS LEBEN
Sankt Oswald begeistert mit einem breiten Freizeitangebot und vielfältigen Möglichkeiten, aktiv zu sein oder einfach zu genießen. Der Sport- und Freizeitpark lädt zu Bewegung und Begegnung ein – ob beim Fußball, Tennis, Skifahren oder Turnen. Ein Freibad, ein spannender Bogenparcours und der weitum bekannte 18-Loch-Golfplatz des Golfclubs Mühlviertel sorgen für Abwechslung und Freizeitspaß.
Auch Reiterinnen und Reiter kommen voll auf ihre Kosten: Das weitläufige Reitwegenetz mit zahlreichen Einstellmöglichkeiten rund um Sankt Oswald bietet ideale Bedingungen für Pferdefreunde.
Umgeben von den sanften Hügeln des Mühlviertels finden Sie hier Erholung und Entspannung inmitten der Natur. Über 100 km markierte Wanderwege führen auf Höhen zwischen 600 und 1.000 Metern durch romantische Wiesen, stille Wälder und malerische Landschaften.
Beliebte Ausflugsziele sind der Braunberg (912 m) mit Alpenvereinshütte und der Buchberg mit der Aussichtswarte „Hoh-Haus“.
Auch im Winter zeigt sich Sankt Oswald von seiner schönsten Seite.
Fernab von Hektik und Massentourismus erleben Sie hier eine noch ursprüngliche Natur – ideal für Schneeschuhwanderungen, Langlaufen oder gemütliche Spaziergänge im Schnee.
GENUSS UND GEMEINSCHAFT
Kulinarisch bietet Sankt Oswald eine angenehme Vielfalt: die Bäckerei Haneder, das Ristorante-Pizzeria Napoli, das Gasthaus zur Post, das Restaurant am Golfplatz und das Dorfwirtshaus Gartner in herrlicher, nebelfreier Lage von Marreith laden zum Genießen und Verweilen ein.
Ein reges Vereinsleben mit rund 40 Vereinen verschiedenster Art sorgt für Gemeinschaft, Begegnung und lebendige Dorfkultur – das macht Sankt Oswald zu einem Ort, an dem man sich schnell zuhause fühlt.
KAUFABWICKLUNG | VERKAUFSMODUS
Mögliche Besichtigungstermine sind wochentags jeweils an einem Donnerstag und Freitag jeweils von 09.00 – 11.00 Uhr und von 13.00 – 15.00 Uhr möglich. Es wird um eine telefonische Terminvergabe unter 0664 450 90 58 ersucht.
Vereinbaren Sie einen ersten KENNENLERNTERMIN MIT DER IMMOBILIE. Wir freuen uns auf Ihren Anruf
sonstige Angaben
Der Interessent bestätigt, dass ihm heute von der Huber Immobilien e.U., das in diesem Exposé näher beschriebene Objekt unverbindlich zum Kauf angeboten wurde. Diese Geschäftsgelegenheit war dem Interessenten bisher noch nicht bekannt. Die Huber Immobilien e.U. weist weiters darauf hin, dass Sie zwecks Geschäftsgebrauch nicht als Doppelmakler tätig ist. Die Angaben erfolgen aufgrund der Informationen und der Unterlagen die uns vom Eigentümer und/oder von Dritten zur Verfügung gestellt wurden und sind ohne Gewähr. Irrtümer, Druckfehler und Änderungen vorbehalten.
Vom/von den Käufer(n) ist im Erfolgsfalle bei Kauf der angebotenen Immobilie kein Vermittlungshonorar zu bezahlen. Der/die Interessent(en) verzichten auf Ihr 14tägiges Rücktrittsrecht laut § 11 FAGG und beauftragen sofort die Fa. Huber Immobilien e.U. mit der Zusendung/Übermittlung von diversen Verkaufs –und Marketingunterlagen der von Ihnen angefragten und zu veräußernden Immobilie. Eine diesbezügliche Kaufnebenkostenübersicht, wurden dem/den Kaufinteressent(en) persönlich vor Ort überreicht bzw. im E-Mailangebot mit gesendet.
Bitte nehmen sie zur Kenntnis, dass wir nur Anfragen unter Angabe Ihres vollständigen Namens, der vollständigen Adresse und Ihrer Telefonnummer, wo wir sie erreichen können, beantworten werden!
Besuchen Sie uns auch einmal auf unserer Facebookseite (https://www.facebook.com/HuberImmobilienOG)
Die dargestellten 3D-Grundrisse des Reihenhauses sind Visualisierungen. Einrichtungen und Möbel sind fiktiv. Ein diesbezüglicher Anspruch auf Richtigkeit und Haftung des Grundrisses der Wohnung ist daher ausgeschlossen! Alle Angebote sind unverbindlich und freibleibend. Betriebskostenangaben sind Erfahrungswerte und können von den angegebenen Werten bzw. tatsächlichen Verbrauch abweichen. LAUT BGStG (Bundes-Behindertengleichstellungsgesetz) weisen wir darauf hin, dass die angebotene und zu verkaufende Immobilie NICHT BARRIEREFREI ist.
Vielleicht dürfen wir sie demnächst schon persönlich kennen lernen und unterhalten uns über Ihre Zukunft.
Wir freuen uns auf Ihren geschätzten Anruf
Herzlichst Ihr Stefan Huber, Huber Immobilien e.U. "Da bin ich Zuhaus"














